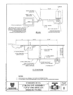
Technical Specifications

Developers and property owners, proposing a water main extension, must install the system expansion in accordance with plans and specifications approved by the District Engineer, and in accordance with the standards and conditions for constructing extensions to the water system adopted by the Board of Commissioners of the District. The Technical Specifications found here detail various types of installations that may be necessary to expand the District's existing system. If you have questions please contact the District office at info@kcwd90.com.

Detailed Specs